OR20200910
Ortschaftsrat Randau-Calenberge – Sitzung vom 10.09.2020
Die beiden Hauptgegenstände der ersten Ortschaftsratssitzung nach der Sommerpause waren die
- Beratung zur Spielplatzflächenkonzeption 2021-2025 (DS0008_20) und die
- Beratung zum Grundsatzbeschluss zum Anbau eines Veranstaltungssaales an das Bürgerhaus Calenberge (DS0283_20)
Im Weiteren:
- Calenberge: Hausmeisterleistungen nicht feststellbar
- Grünflächenmahd: mehr Vorsicht
- Seniorentreffen: weiterhin nur bedingt möglich
- Mistelbefall: Gefährdung durch befallene Bäume
- Ebereschen: zu große Kronen
Nächste Sitzung: 08.10.2020, 19:00 Uhr
——————————
Gäste:
- Frau Horn (Betreuungsbehörde der Stadt Magdeburg)
- Herr Rösler (Vorsitzender Stadtratsfraktion der SPD)
- Herr Scharff (Kommunales Gebäudemanagement der Stadt Magdeburg)
- Beratung zur Spielplatzflächenkonzeption 2021-2025 (DS0008_20)
Frau Horn gab einleitende Informationen zur Konzeption und stelle fest, dass alle geplanten Vorhaben in Magdeburg bislang verwirklicht werden konnten.
Zwei Anlagen (Neu-Olvenstedt und Spionskopf) befinden sich aktuell noch in der Umsetzungsphase.
Sie stellte fest, dass es (mit Stand 12/2018) seit 2013 zu einem erheblichen Anwachsen der Kinderzahl (+ 6.000) in unserer Landeshauptstadt gekommen ist. Besonders fallen hier die Gebiete Stadtfeld-Ost (+533), Leipziger Straße (+548) und Neue Neustadt (+852) auf.
Mit Stand 12/2018 sind in Randau 81 und in Calenberge 12 Kinder verzeichnet.
Beide Orte verfügen über jeweils einen in Trägerschaft der Landeshauptstadt befindlichen Spielplatz (jeweils in unmittelbarer Nähe der Bürgerhäuser). Darüber hinaus befindet sich in Randau an der Steinzeitanlage der „Steinzeit-Erlebnispfad“.
Frau Horn bot dem Ortschaftsrat an, den Spielplatz am Bürgerhaus Randau aufzugeben. Dafür würde die Stadt die Trägerschaft über den Steinzeit-Erlebnispfad übernehmen und erweitern.
Der Ortschaftsrat lehnte dieses Ansinnen ab. Der seinerzeit mit Unterstützung durch Herrn Lischka, den Fraktionsvorsitzenden der CDU im Stadtparlament, mit viel Engagement und Einsatz von den Randauer Bürgern mitgebaute Spielplatz ist nicht nur für die Kinder des Ortes gedacht, sondern durch die vielen, oftmals sehr jungen Besucher (Schulklassen, Kindergärten) trägt der Spielplatz erheblich zu einem Imagegewinn der Steinzeitanlage und somit der Landeshauptstadt bei.
Der Ortschaftsrat stellte im Gegenzug einstimmig den Antrag auf Erhaltung des bisherigen (Klein-)Spielplatzes am Bürgerhaus und auf Übernahme des Steinzeit-Erlebnispfades in Trägerschaft der Landeshauptstadt.
Herr Scharff gab zum o.g. Konzept folgenden Ausführungen:
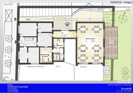
Das aus dem Jahr 1870 stammende Bürgerhaus in der Dorfstraße 18 in Calenberge entspricht in baulicher Hinsicht schon lange nicht mehr den Anforderungen der derzeitigen Nutzung.
Es fehlen ein ausreichend großer Mehrzweckraum für Besprechungen des Ortschaftsrates, Veranstaltungen der Vereine und der freiwilligen Feuerwehr, ein Raum für die Bürgerberatung, ein Raum für sportliche Aktivitäten (Gymnastik, Yoga, Tischtennis) sowie entsprechende Sanitärräume.
Der im Dachgeschoss des Wohnhauses untergebrachte Heimatverein ist im Grunde von öffentlichen Veranstaltungen abgeschnitten, da ein zweiter baulicher Rettungsweg nicht existiert. Das Gebäude ist nicht barrierefrei erschlossen.
Seitens der Verwaltung wurde geprüft, wie sich durch geeignete bauliche Maßnahmen im Bestandsgebäude der fehlende Raum gewinnen und reguläre bauliche Zustände herstellen lassen. Die Prüfung ergab, dass sich im Gebäude durch den umfassenden Umbau der Altsubstanz keine wirtschaftlich vertretbare bauliche Lösung realisieren lässt. Daher wurde alternativ untersucht, inwieweit ein Anbau an das Bestandsgebäude eine sinnvolle Alternative ermöglicht.
Im Ergebnis wurde eine erste Vorplanung durchgeführt und eine Funktionslösung erarbeitet, die bei einem vertretbaren Aufwand durch einen auf dem östlichen Teil des Grundstücks gelegenen rückseitigen Anbau den gewünschten Bedarf deckt. Den Kern des Anbaus stellt ein ca. 98 m² großer Mehrzwecksaal dar. Ihm ist eine Terrasse mit Verbindung zu einer großen Grünfläche mit Spielplatz angelagert. Die Verbindung zum EG des Wohngebäudes wird durch einen Flur gewährleistet, umzubauende Damen- und Herren-WC sowie ein neues barrierefreies WC werden vom Wohngebäude aus erreicht. Die barrierefreie Erschließung des neuen Mehrzwecksaales und des Bestandsgebäudes wird über eine Rampe an der nördlichen Giebelseite des Wohnhauses gewährleistet.
Der Gesamtkostenrahmen des Vorhabens wird auf etwa 535.000 EUR grob geschätzt
Der Ortschaftsrat zeigte sich angesichts der immensen Summe äußerst erschrocken, stimmte jedoch dem Grundsatzbeschluss zu, einen – wie auch immer gearteten – Anbau zur besseren Nutzung des Bürgerhauses zu realisieren. Hier bedarf es jedoch noch einer Überarbeitung der Vorplanung, denn in diesen Größenordnungen ist die Lösung keinem Magdeburger gegenüber vertretbar.
- Calenberge: Hausmeisterleistungen nicht feststellbar
Beschwerden gab es seitens der Calenberger Bürger zum derzeitigen Zustand von Wegen und Flächen rund um das Bürgerhaus Calenberge und zum Gebäude (bspw. Dachrinnen) selbst, was die Frage nach dem Vorhandensein des Hausmeisters aufwarf.
Frau Herrmann nimmt die Frage auf und wird sich zeitnah mit den zuständigen Stellen und dem Hausmeister selbst in Verbindung setzen.
- Grünflächenmahd: mehr Vorsicht
Bei der Mahd der Grünflächen im Ort lässt es die beauftragte Firma an entsprechender Vorsicht mangeln. Die Mahd wird mit Hilfe von Gebläsen zusammengetragen, wobei insbesondere Steine von Schotterflächen die Hauswände beschädigen.
Die Beschwerde wird entsprechend weitergeleitet.
- Seniorentreffen: weiterhin nur bedingt möglich
Das Coronavirus hält uns alle nach wie vor in der Hand. Das gilt auch für unsere Senioren, die sich seit Beginn der Pandemie nach einem geselligen Beisammensein sehnen. Eine entsprechende Anfrage wurde von Ortschaftsrat wie folgt beantwortet:
Seniorennachmittage bzw. -abende sind prinzipiell im Bürgerhaus wieder möglich, jedoch unter strenger Einhaltung der geltenden Hygiene- und Abstandsregelungen. Der Ortschaftsrat lehnt eine Verantwortungsübernahme grundsätzlich ab. Die Durchführung solcher Veranstaltungen liegt in der vollen Verantwortung des Anmelders. Wenn sich dafür jemand bereit erklärt, steht der Durchführung nichts im Wege.
- Mistelbefall: Gefährdung durch befallene Bäume
Mehrere Bäume, unter anderem im Verbindungsweg zwischen der Randauer Dorfstraße und „An der Schlossmauer“ sind stark von Misteln befallen, was ein Absterben der Bäume und eine damit einhergehende Gefährdung mit sich bringt. Das sind Gründe, die aus Gefahrenabwehrsicht normalerweise zwingend zur Beseitigung der Gefahrenquelle führen müssen. Allerdings kommt es hier immer wieder zum Konflikt mit den Naturschutzbehörden, welche das wohl nicht so sehen.
Hier muss zeitnah eine Lösung gefunden werden.
- Ebereschen: zu große Kronen
Im gleichen Kontext stehen die für die Stämme erheblich zu großen Baumkronen der Ebereschen im Ort, insbesondere in der Straße „Zur alten Elbe“. Schon mittelschwere Stürme, wie sie bekanntlich vermehrt im Herbst auftreten, können zu einem (Teil-)Abbruch der Kronen führen und stellen somit ebenfalls eine erhebliche Gefahrenquelle dar.
Hier müssen dringen Auslichtungsarbeiten durchgeführt werden.



